Обяви За нас Контакти
Продава 3-СТАЕН
град София, Младост 4
272 340 €
532 650.74 лв.

(2 251 €, 4 402.57 лв./m2)
Цената е с включено ДДС
Коригирана в 19:23 на 15 декември, 2025 год.
Обявата е посетена 5902 пъти.
Площ:
121 m2
Етаж:
2-ри от 10
Строителство:
Тухла, Ще бъде въведен в експлоатация 2026 г.

Описание на имота:


Comfort Properties Group има удоволствието да Ви представи Тристаен Апартамент в нова жилищна сграда в квартал Младост 4 .

Местоположението на сградата е в непосредствена близост до Бизнес Парк София, Geritage park, метростанция Бизнес Парк , IKEA и София Ринг Мол, спирки на градски транспорт, хранителни магазини, заведения, детски градини и училища, парк и други удобства. Локацията е в близост до бул. Александър Малинов и Околовръстен път, които осигуряват бърз достъп с другите части на столицата.

Сградата е 10-етажна и се състои от три входа.

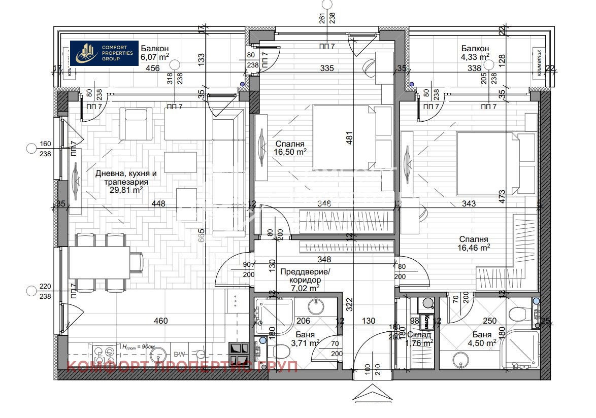
За продажба се предлага: Тристаен Апартамент разположен на 2 етаж от 10 етажна жилищна сграда с площ от 121.04 кв.м с общи части и 105.20 кв.м застроена площ.

Разпределение:

-Антре - 7.02 кв.м

-Дневна с трапезария и кухненски бокс - 29.81 кв.м

-Балкон към дневната - 6.07 кв.м

-Спалня - 16.50 кв.м

-Спалня - 16.46 кв.м

-Балкон към спалнята - 4.33 кв.м

-Две бани с две тоалетни - 4.50 и 3.71 кв.м

-Склад - 1.76 кв.м

Изложение: Запад/Север

Има възможност за закупуване на Паркоместа и Гаражи

Етап на завършеност:

Апартаментите се продават завършени по БДС:

Стени и таван мазилка и замазка;

Под циментова замазка;

Ел. инсталации до конзола;

ВиК инсталации на тапа;

Направено окабеляване за интернет, телевизия, телефон;

Вид дограма: PVC;

Отопление: Газ; Ток-климатици

Блиндирана врата

Общи части в напълно завършен вид.

Технически характеристики:

Висок клас на строителството с най-модерни технологии и материали при изграждането, тухли Wienerberger, петкамерна дограма, асансьори висок клас. Общите части са изпълнени луксозно, а настилката е от естествен камък гранит.

Етап на строителство:

Сградата в момента е на етап Акт 14

Акт 16 / Разрешение за ползване очаква ЕСЕН / ЗИМА 2026 г.

На близки разстояния е осигурено всичко необходимо, съпътстващо едно съвременно ежедневие.
Особености
Тухла
Асансьор
С гараж
Видео наблюдение
Контрол на достъпа
За контакт:
0888004001
Брокер:
Роман Калов
+359888004001
Още оферти от брокера: Продава | Дава под наем | Купува | Наема
Агенция:
КОМФОРТ ПРОПЕРТИС ГРУП
0888004001
КОМФОРТ ПРОПЕРТИС ГРУП logo
Медал за прослужено време
В imot.bg от 2022 г.
comfortpropgroup.imot.bg
Адрес:
област София, гр. София, София,
ИЗПРАТИ ЗАПИТВАНЕ
ИЗПРАТИ ЗАПИТВАНЕТО

Продава 3-СТАЕН
град София, Младост 4
Обява: 1c174557077867515

272 340 €
532 650.74 лв.
(2 251 €, 4 402.57 лв./m2)

Цената е с включено ДДС
ЗАПАЗИ ОБЯВАТА

Местоположение: град София, Младост 4

Допълнителни данни за имотите в района и сравнение с други райони

Покажи

Период

* Средните цени са определени чрез медианна стойност